Property Details
Basic Information
- Property Type: Mobile Home
- MLS Number: 5075289
- Status: ACT
- Lot Description: Corner, Near Shopping, Near School(s)
- Foreclosure: No
Building
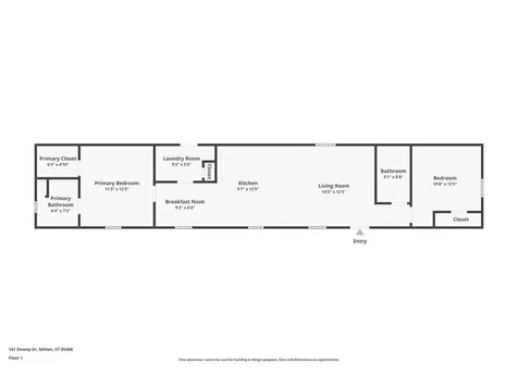
- Square Feet: 952
- Year Built: 2019
- Zoning: Residential
- Stories: 1
- Roof: Shingle
- Style: Single Wide
- Exterior Color: Indigo
- Foundation: Insulated Concrete Forms
Location
- Town: Milton
- County: Chittenden
- State: VT
- Zip: 05468
Interior Features
Bedrooms
- Bedrooms: 2
Bathrooms
- Bathrooms: 2
Other
- Interior Features: Blinds, Kitchen Island, Laundry Hook-ups, Primary BR w/ BA, Vaulted Ceiling, Walk-in Closet
- Floors: Carpet, Vinyl
Exterior Features
Features
- Road Frontage: No
- Exterior Features: Deck, Outbuilding, Covered Porch, Shed
Utilities and Appliances
Utilities and Appliances
- Sewer: Public
- Water: Public
Community
Schools
- Elementary School: Milton Elementary School
- Junior High: Milton Jr High School
- High School: Milton Senior High School
Amenities
- Pets: Cats OK, Dogs OK
Other Details
Finance
- Taxes: 1380.09
- Tax Year: 2025



























