Property Details
Basic Information
- Property Type: Condo
- MLS Number: 5065967
- Status: Active With Contract
- Lot Description: Condo Development, Landscaped, Sidewalks, Street Lights, Wooded
- Foreclosure: No
Building
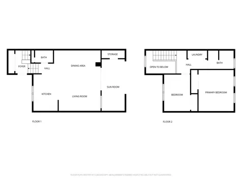
- Square Feet: 1,192
- Year Built: 1981
- Zoning: Residential
- Stories: 2
- Roof: Shingle
- Style: Contemporary
- Foundation: Slab w/ Frost Wall
- Garage Spaces: 1
Location
- Town: Colchester
- County: Chittenden
- State: VT
- Zip: 05446
Interior Features
Bedrooms
- Bedrooms: 2
Bathrooms
- Bathrooms: 2
- Full Baths: 1
Exterior Features
Features
- Driveway: Paved
- Road Frontage: TBD
Utilities and Appliances
Utilities and Appliances
- Sewer: Community, Septic
- Water: Public
Community
Schools
- Elementary School: Colchester Middle School
- Junior High: Colchester Middle School
- High School: Colchester High School
Other Details
Finance
- HOA Fee: $300
- Taxes: $4,492.08
- Tax Year: 2025
































