Property Details
Basic Information
- Property Type: Single Family
- MLS Number: 5042256
- Status: SLD
- Lot Description: City Lot, Mountain View, Water View
- Acreage: 0.19
- Foreclosure: No
Building
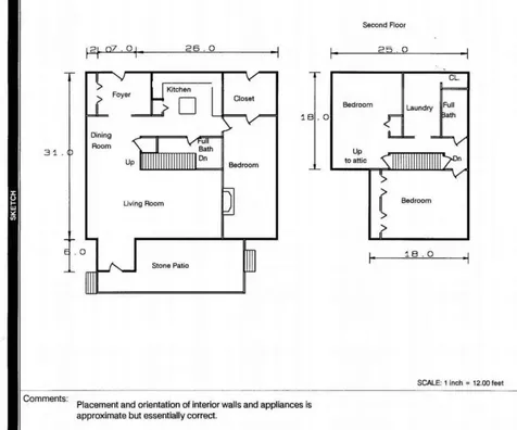
- Square Feet: 1,786
- Year Built: 1925
- Zoning: RL
- Stories: 2
- Roof: Other
- Building Construction: Wood Frame
- Exterior Color: Yellow
- Foundation: Stone
- Garage Spaces: 2
Location
- Town: Burlington
- County: Chittenden
- State: VT
- Zip: 05401
Interior Features
Bedrooms
- Bedrooms: 3
Bathrooms
- Bathrooms: 2
- Full Baths: 2
Other
- Interior Features: Blinds, Cedar Closet, Dining Area, Draperies, Gas Fireplace,2 Fireplaces, Kitchen Island, Walk-in Closet,2nd Floor Laundry
- Floors: Carpet, Hardwood, Tile
Exterior Features
Features
- Parking Description: Driveway, Garage
- Driveway: Paved
- Road Frontage: 85
- Exterior Features: Patio
Utilities and Appliances
Utilities and Appliances
- Appliances Included: Dishwasher, Disposal, Range Hood, Microwave, Gas Range
- Heat System: Gas Heater, Hot Water, Radiator
- Sewer: Public Sewer On-Site
- Water: Public Water On-Site
Other Details
Finance
- Taxes: $9,101
- Tax Year: 2025




















